
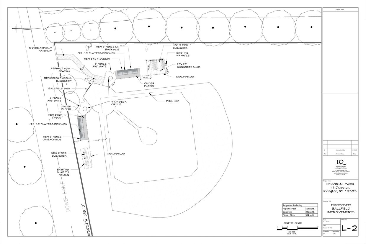
We are happy to share that the town of Irvington will be breaking ground at Memorial Park, a baseball field home to Irvington High School Junior and Varsity teams. The construction will consist of new dugouts for players and bleachers for fans.
We will share updates and pictures here on the Irvington Booster Club website; we hope you will follow along.
Once again, we thank you all for your continued support and dedication, and we look forward to celebrating the opening in spring 2025.
With sincere gratitude,
The Irvington Bulldog Booster Club


We use cookies to analyze website traffic and optimize your website experience. By accepting our use of cookies, your data will be aggregated with all other user data.